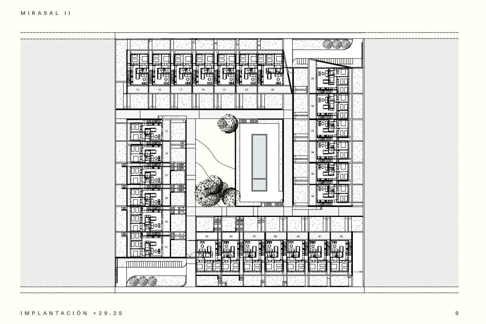
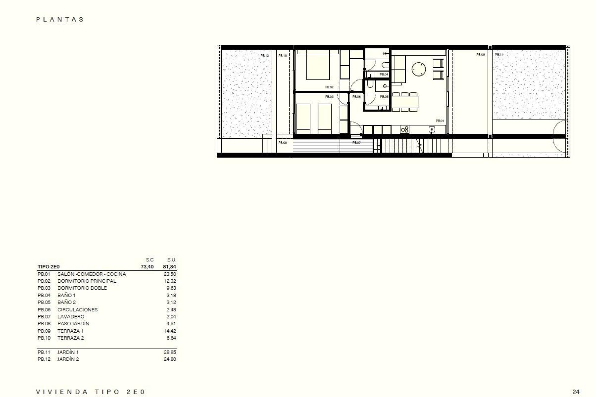
Bungalow. New Build Torrevieja. Alicante

REF: NBR-96345
259.000€
WhatsApp Chat with us