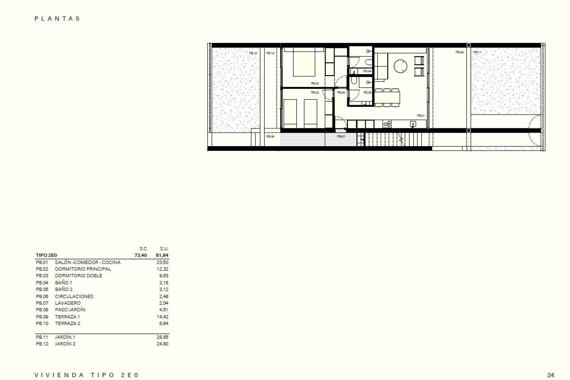
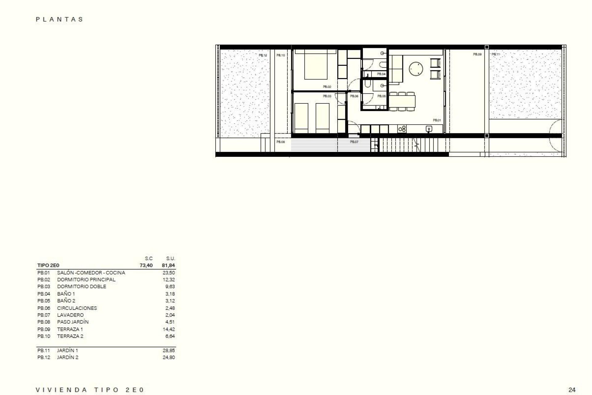
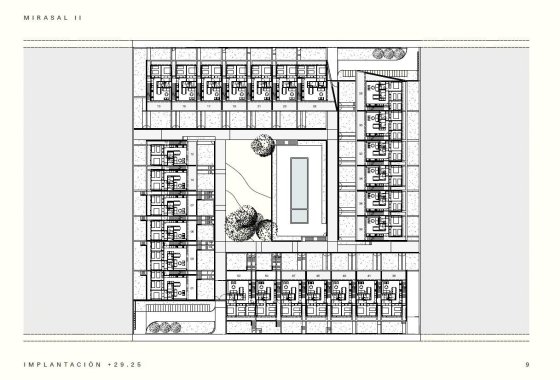
Bungalow. Nueva construcción Torrevieja. Alicante

REF: NBR-96345
259.000€
WhatsApp Chatea con nosotros