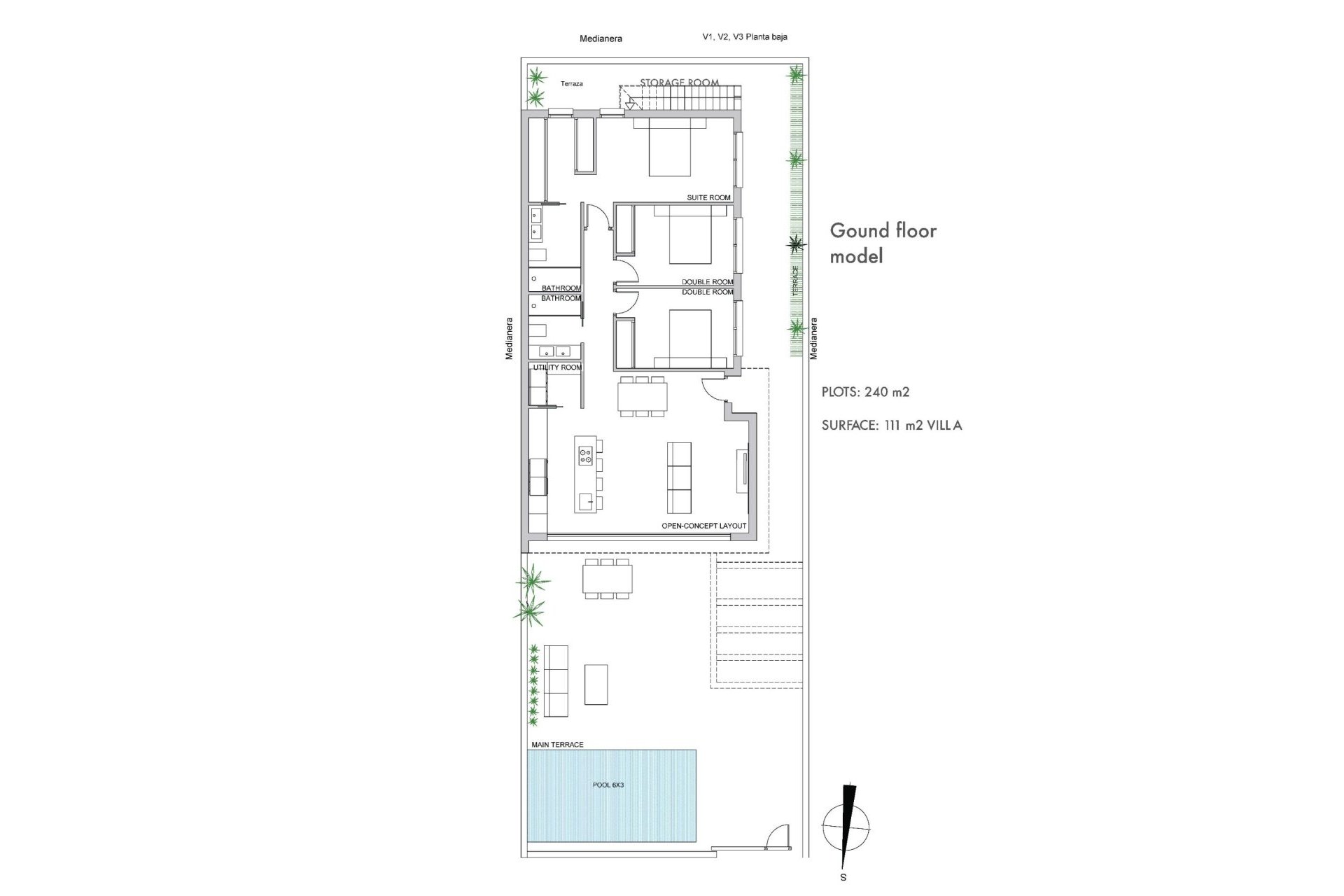
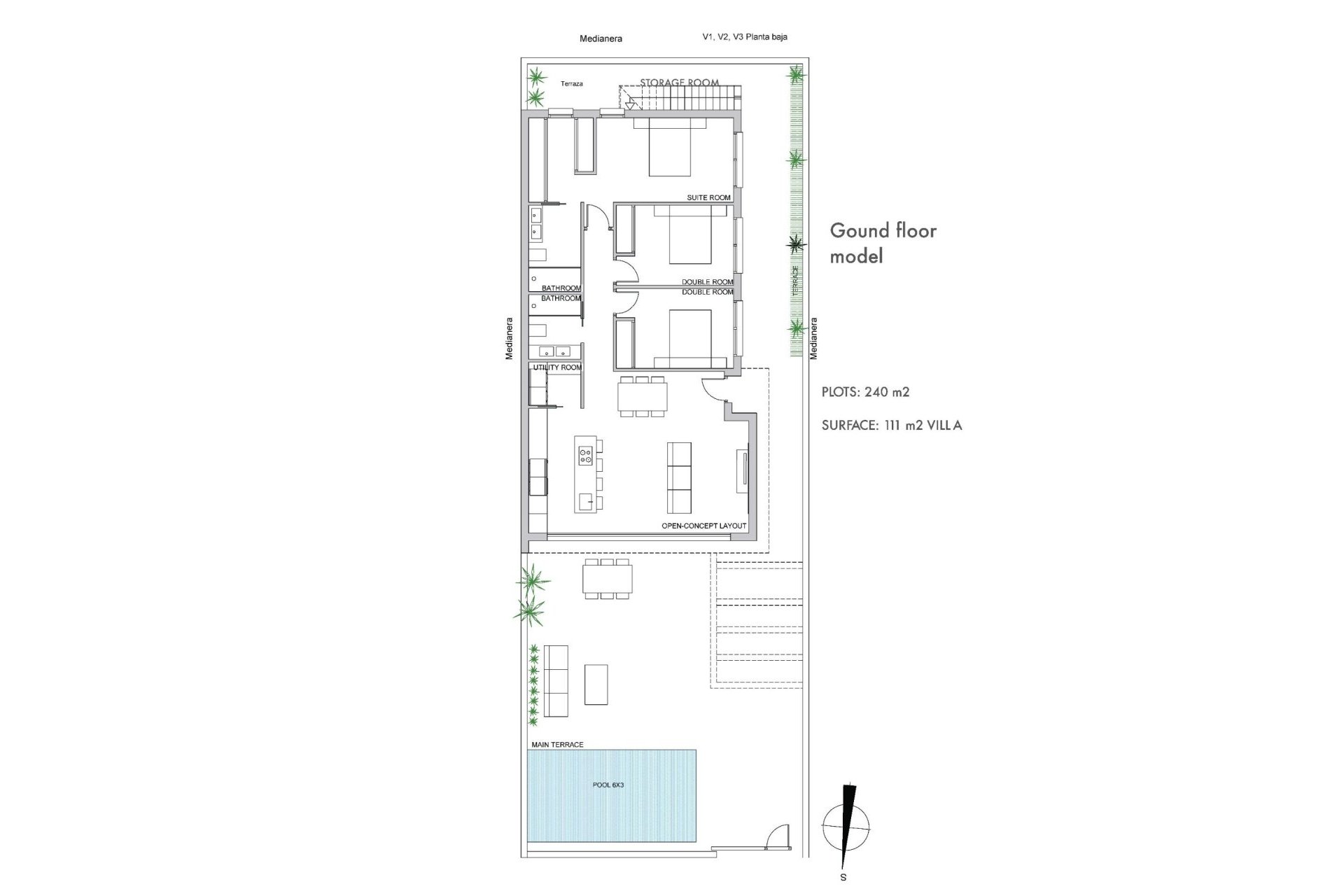
Detached Villa. New Build Los Alcazares. Murcia

REF: NBR-27274
489.000€
WhatsApp Chat with us