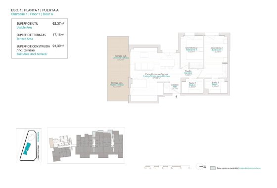
Apartment. New Build Villajoyosa. Alicante

REF: NBR-74288
445.000€
WhatsApp Chat with us