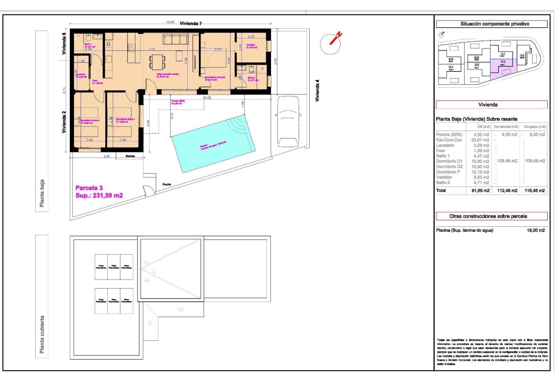
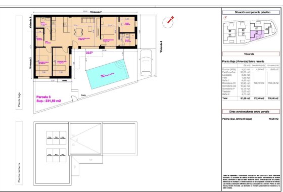
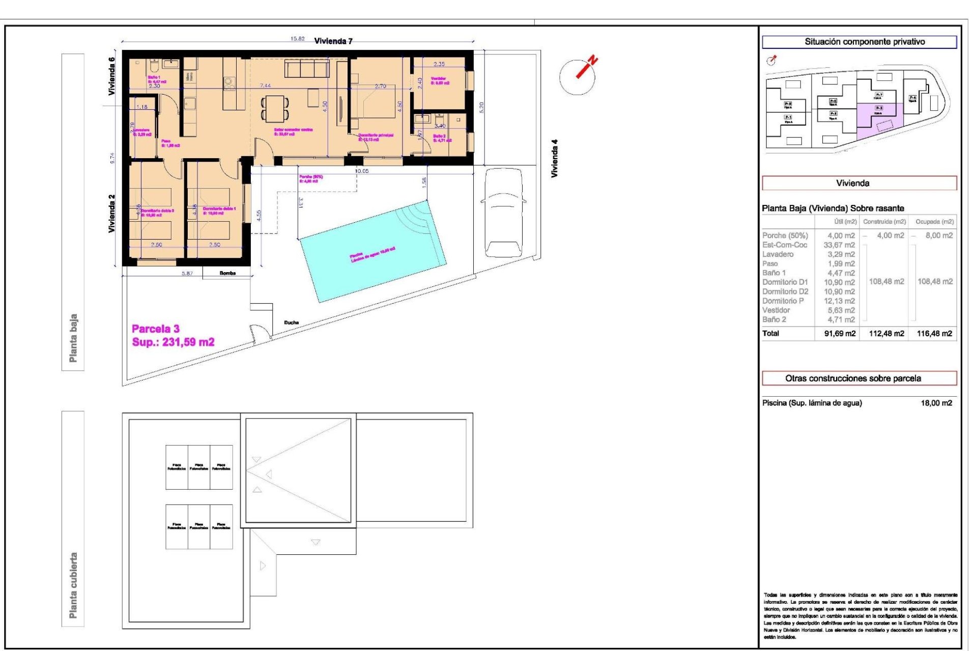
Quad. New Build Daya Nueva. Alicante

REF: NBR-24748
380.000€
WhatsApp Chat with us