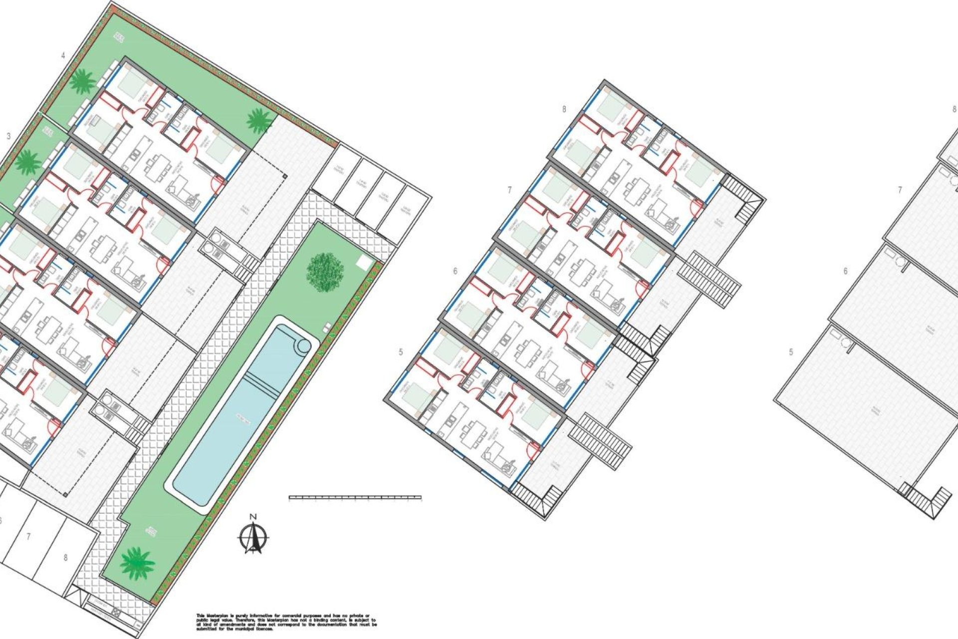
Bungalow. New Build Pilar de la Horadada. Alicante

REF: NBR-16922
359.900€
WhatsApp Chat with us