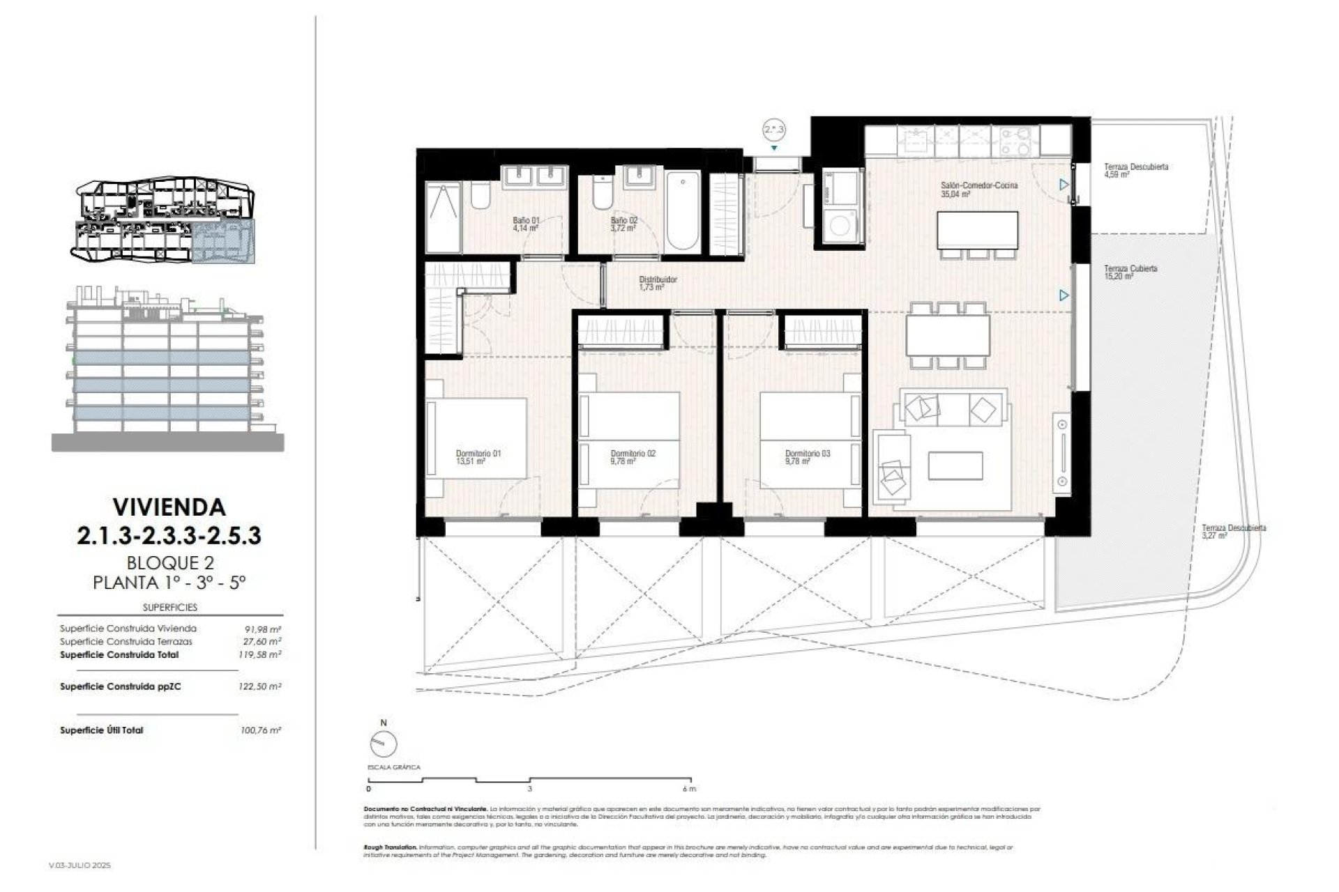
Apartment. New Build Villajoyosa. Alicante

REF: NBR-21462
543.000€
WhatsApp Chat with us