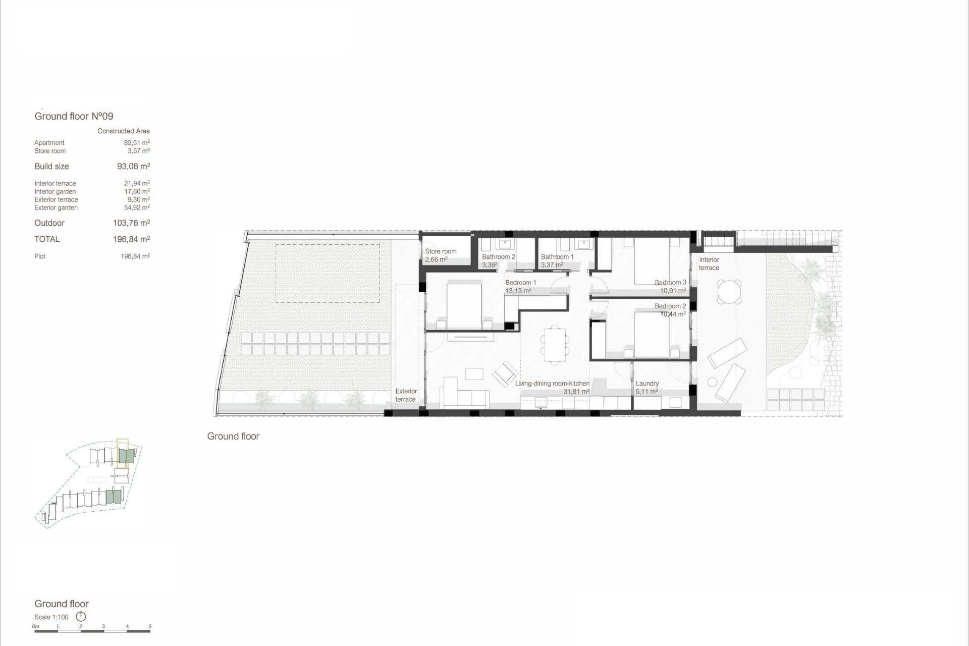
Bungalow. New Build San Javier. Murcia

REF: NBR-49484
359.000€
WhatsApp Chat with us