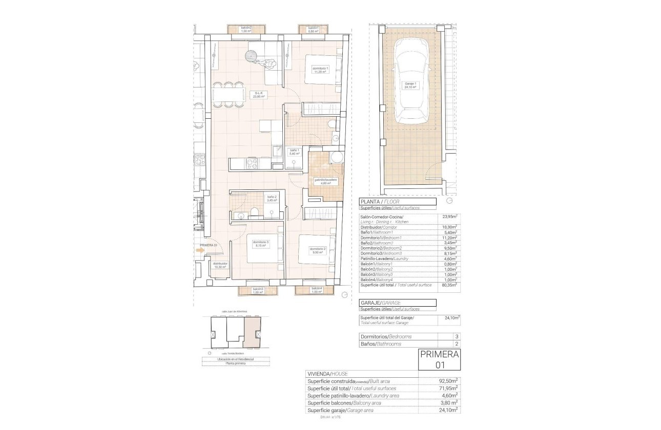
Apartment. New Build Hondón de las Nieves. Alicante

REF: NBR-89501
250.000€
WhatsApp Chat with us