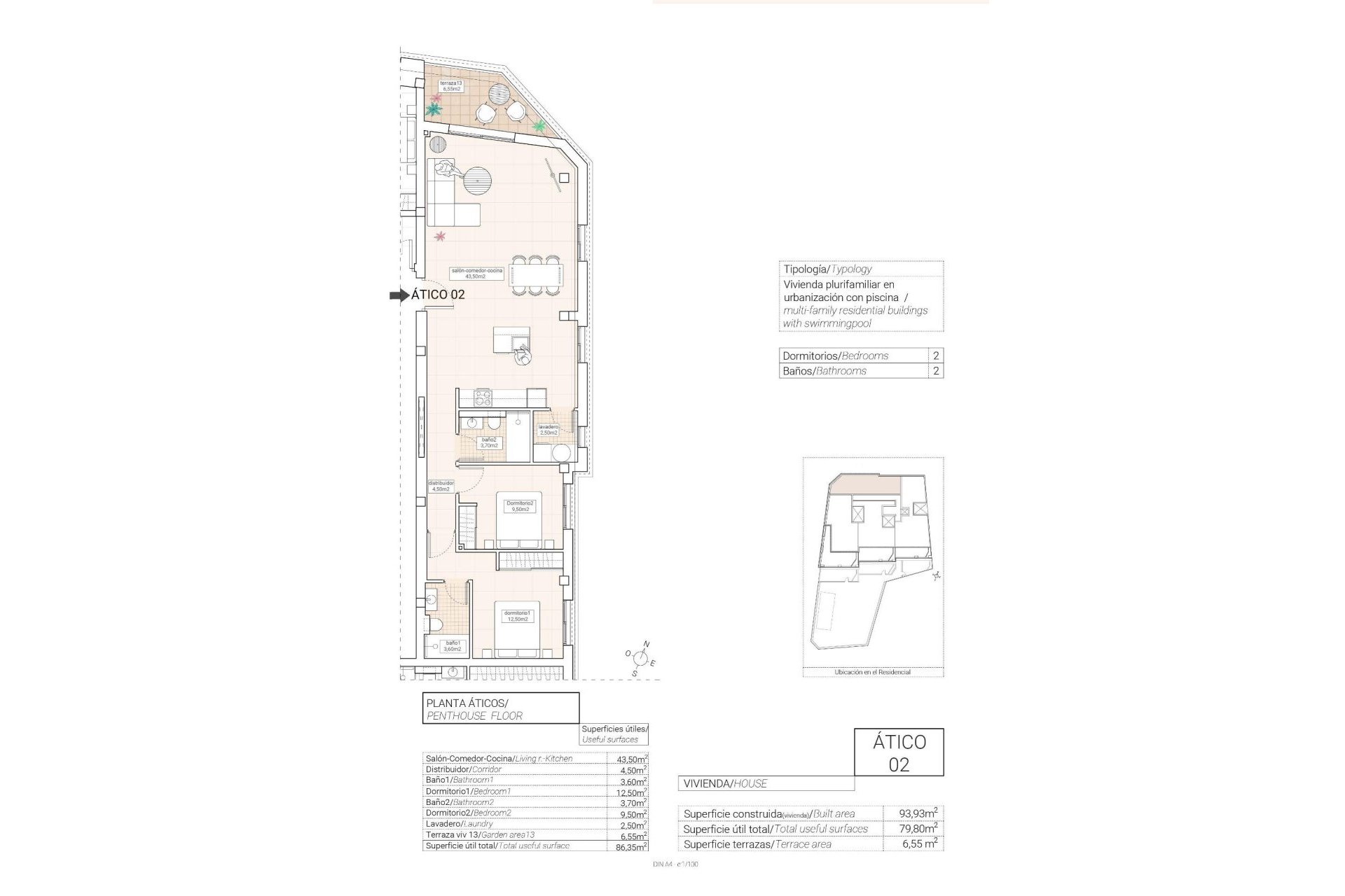
Apartment. New Build Hondón de las Nieves. Alicante

REF: NBR-51555
220.000€
WhatsApp Chat with us