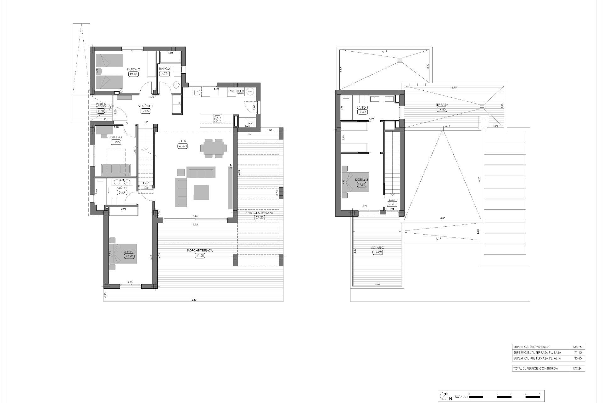
Chalet Independiente. Nueva construcción Algorfa. Alicante

REF: NBR-68560
793.000€
WhatsApp Chatea con nosotros