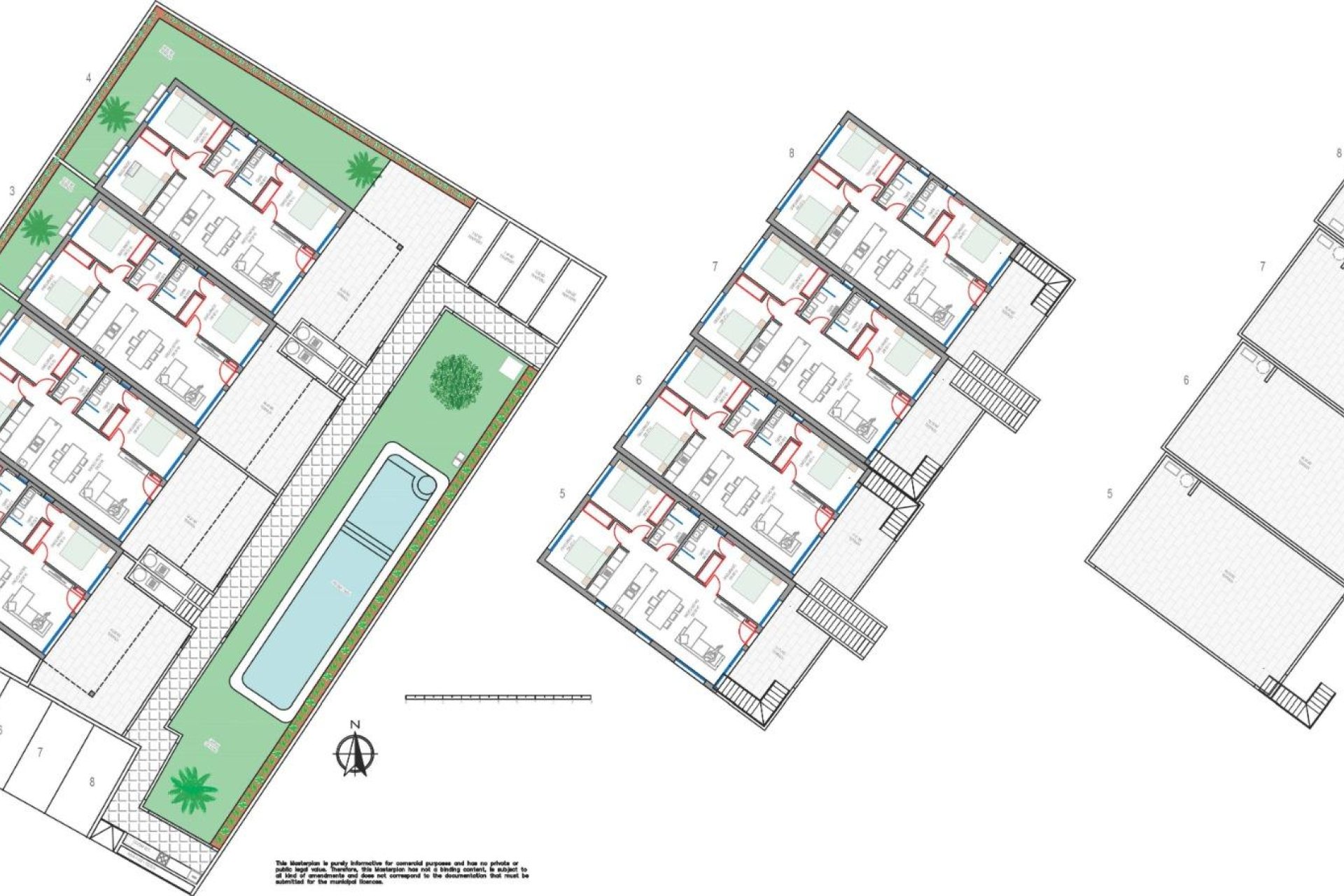
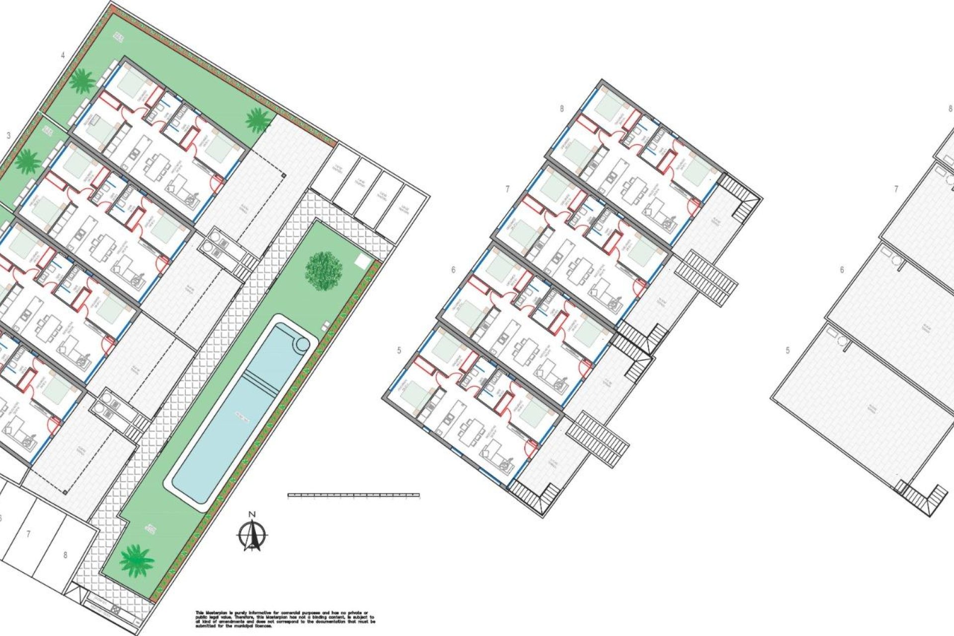
Bungalow. Nueva construcción Pilar de la Horadada. Alicante

REF: NBR-13010
389.900€
WhatsApp Chatea con nosotros