Apartamentos de nueva construcción en Guardamar del Segura: vida moderna a solo 1,4 km de la playa
Descubra una nueva promoción residencial en Guardamar del Segura, Alicante, que ofrece solo 19 viviendas exclusivas y modernas diseñadas para una vida cómoda y contemporánea en la Costa Blanca. Con una ubicación ideal a solo 1,4 km de la playa y a pocos pasos del centro de la ciudad, esta promoción combina estilo, funcionalidad y una ubicación privilegiada en la costa.
Proyecto residencial exclusivo con disponibilidad limitada
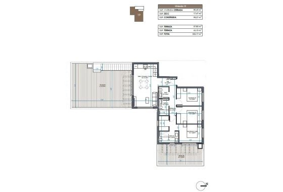
Esta urbanización boutique cuenta con apartamentos de 2 y 3 dormitorios con diferentes distribuciones para adaptarse a las distintas necesidades:
Apartamentos en planta baja con amplias terrazas privadas.
Apartamentos en planta intermedia con amplios balcones o terrazas abiertas.
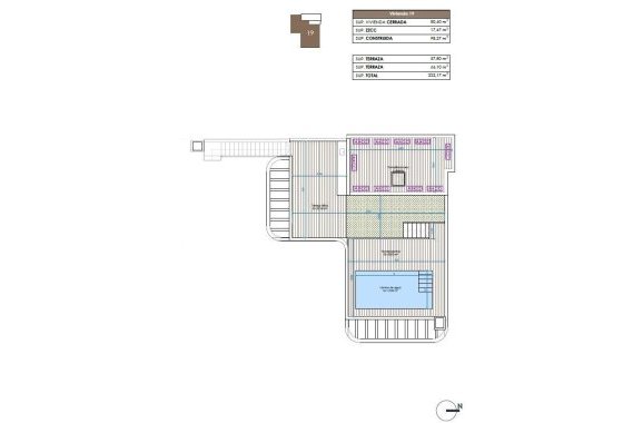
Un espectacular ático con solárium privado y piscina
Cada propiedad presenta elegantes líneas arquitectónicas curvas, barandillas de cristal y acabados modernos, ideales tanto para residir todo el año como para disfrutar de unas lujosas vacaciones.
Acabados de primera calidad y características de eficiencia energética
Diseñadas para ofrecer comodidad y sostenibilidad, cada vivienda incluye:
Puerta de entrada reforzada para mayor seguridad
Cocina totalmente amueblada con electrodomésticos incluidos
Sistema aerotérmico de bajo consumo para agua caliente
Plaza de aparcamiento privada incluida en el precio
El edificio también cuenta con una piscina comunitaria y zonas ajardinadas, perfectas para disfrutar del soleado clima mediterráneo.
Ubicación privilegiada en Guardamar del Segura
Situada en una zona bien comunicada y animada de Guardamar, esta promoción ofrece fácil acceso a la naturaleza, las playas y los servicios esenciales. Los residentes disfrutan de la proximidad a supermercados, restaurantes, centros médicos, parques y el famoso bosque de pinos y dunas de la localidad.
Distancias clave:
Centro de Guardamar: 1 km
Playa más cercana: 1,4 km
Puerto deportivo: 2 km
Parque Reina Sofía: 1,5 km
Golf La Marquesa (Ciudad Quesada): 9 km
Centro comercial Habaneras (Torrevieja): 13 km
Aeropuerto de Alicante-Elche: 33 km
Las conexiones de transporte público incluyen líneas de autobús directas a Alicante y Torrevieja, lo que ofrece un fácil acceso sin necesidad de coche.
Asegúrese su apartamento en la Costa Blanca
Tanto si busca una residencia permanente, una propiedad vacacional o una inversión inteligente, esta nueva promoción en Guardamar del Segura es la elección perfecta. Póngase en contacto con nosotros hoy mismo para obtener más información o reservar su nueva casa junto al mar.