Villas de Obra Nueva en San Fulgencio con Piscina Privada y Diseño Moderno
Exclusiva promoción de 7 villas independientes con orientación sur en la Costa Blanca
Descubra esta atractiva promoción de 7 villas modernas e independientes en San Fulgencio, un encantador municipio de la provincia de Alicante. Diseñadas con un estilo contemporáneo y orientadas al sur para maximizar la luz natural, estas viviendas combinan confort, calidad y ubicación ideal en la Costa Blanca sur.
Distribución funcional y espacios al aire libre
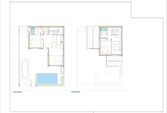
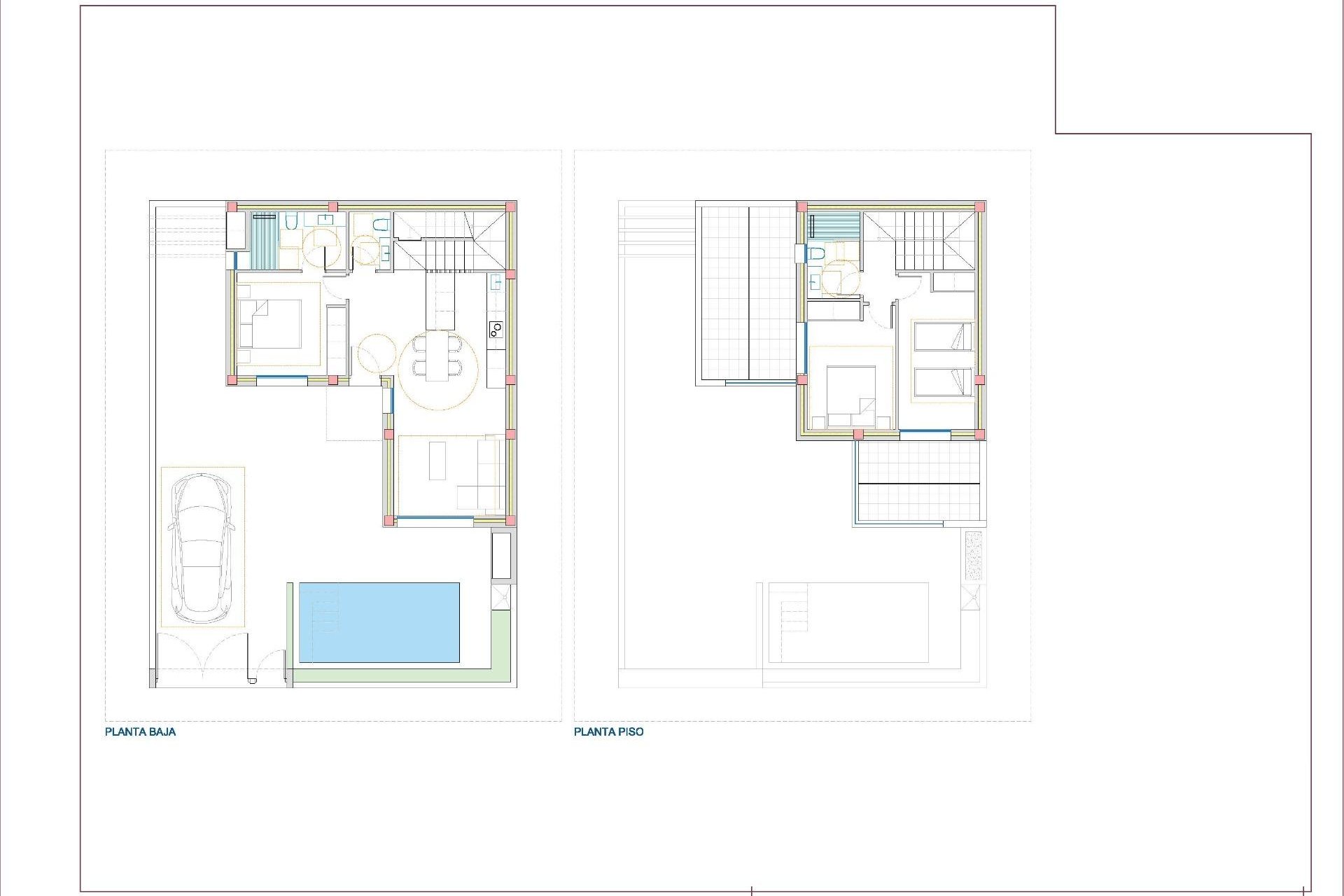
Las villas se desarrollan en dos plantas y ofrecen una excelente distribución interior:
3 dormitorios amplios, uno de ellos en planta baja
2 baños completos y 1 aseo adicional
Cocina de concepto abierto completamente amueblada con electrodomésticos incluidos
Salón luminoso con acceso al exterior
En el exterior, cada vivienda cuenta con:
Piscina privada de 3x5 metros
Parking dentro de la parcela
Dos terrazas abiertas en la planta superior, ideales para disfrutar del sol todo el día
Calidades superiores y eficiencia energética
Las villas están construidas con materiales de alta gama y enfocadas en la sostenibilidad:
Persianas eléctricas
Carpintería exterior con doble acristalamiento
Sistema de aerotermia para agua caliente
Preinstalación de aire acondicionado por conductos
Baños equipados con muebles, mamparas y espejos
Ubicación estratégica en San Fulgencio
San Fulgencio ofrece la tranquilidad de un entorno residencial con todos los servicios a mano, como restaurantes, supermercados, farmacias y más. Además, su excelente ubicación permite llegar fácilmente a los principales puntos de interés de la zona:
Playa de La Marina – 7 km
Guardamar del Segura – 10 km
Campo de Golf La Marquesa (Ciudad Quesada) – 6 km
Centro de Torrevieja – 18 km
Aeropuerto Internacional de Alicante-Elche – 30 km
Ideal para vivir, invertir o disfrutar las vacaciones
Estas villas representan una oportunidad única tanto para residencia permanente como para inversión inmobiliaria en una de las zonas más demandadas del sur de la Costa Blanca. Ya sea para disfrutar del sol mediterráneo o como segunda vivienda, este proyecto ofrece calidad, diseño y una ubicación excelente.
Contáctenos hoy mismo para más información o para agendar su visita y descubra su nuevo hogar en San Fulgencio.