Modernas villas adosadas con piscina privada cerca del mar en Santiago de la Ribera
Exclusiva construcción nueva a solo 1 km de la playa
Descubra esta promoción de edición limitada de solo dos villas adosadas situadas en Santiago de la Ribera, una encantadora localidad costera de la costa murciana, conocida por su estilo de vida relajado, sus playas limpias y su excelente clima durante todo el año. Estas nuevas viviendas están situadas a solo 1 km de la costa del Mar Menor, ofreciendo la combinación perfecta de privacidad, comodidad y proximidad a los servicios esenciales y a las opciones de ocio.
Diseño contemporáneo con distribución funcional
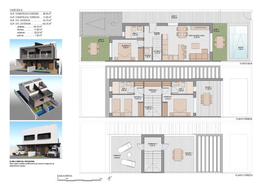
Cada villa está distribuida cuidadosamente en dos plantas más un solárium en la azotea, lo que proporciona un amplio espacio para la vida moderna. Las propiedades cuentan con:
3 amplios dormitorios, incluyendo uno en la planta baja
3 baños completos, dos de ellos en suite
Jardín privado y piscina
Terraza en la primera planta y solárium en la azotea, ideal para tomar el sol o recibir invitados
Aparcamiento privado dentro de la parcela, con acceso desde la calle trasera y entrada peatonal independiente en la parte delantera
Esta distribución garantiza una privacidad óptima y facilidad de acceso, al tiempo que maximiza el espacio exterior.
Acabados y prestaciones de alta calidad
Construidas con atención al detalle y según los estándares modernos, las viviendas incluyen:
Carpintería exterior de aluminio con rotura de puente térmico y ventanas de doble acristalamiento
Instalación completa de aire acondicionado por conductos
Piscina privada incluida en cada villa
Plaza de aparcamiento segura dentro de la parcela
Estas viviendas están diseñadas para disfrutar de todo el año, ya sea como residencia principal, segunda vivienda o inversión para alquiler vacacional.
Ubicación privilegiada en la Costa Cálida
Santiago de la Ribera ofrece un estilo de vida mediterráneo y dinámico con todo a mano:
Playa (Mar Menor) – 1 km
Centro comercial La Ribera – 2 km
Roda Golf – 5 km
Aeropuerto de San Javier – 6 km
Puerto deportivo de Lo Pagán – 4 km
Centro comercial Dos Mares – 3 km
Excelente acceso por carretera a Murcia (40 km) y Cartagena (30 km)
Con su rica cultura local, mercados semanales, paseos marítimos y opciones para practicar deportes acuáticos, Santiago de la Ribera es un lugar ideal para disfrutar de lo mejor de la Costa Cálida.
Haga realidad su sueño de vivir en la costa
No pierda esta oportunidad única de adquirir una elegante villa de nueva construcción en una de las zonas más codiciadas de la costa murciana.
Póngase en contacto con nosotros ahora para obtener más información o concertar una visita.