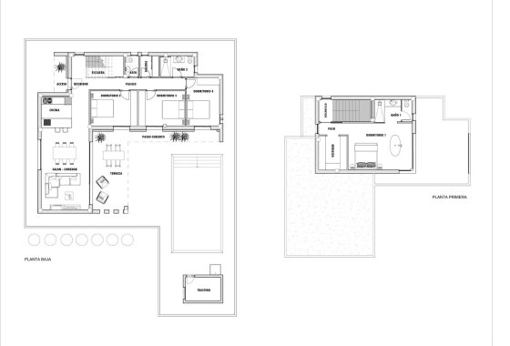
Chalet Independiente. Nueva construcción Aspe. Alicante

REF: NBR-14326
614.000€
WhatsApp Chatea con nosotros