VILLAS DE OBRA NUEVA EN FORTUNA
Villas de nueva construcción en Fortuna, Murcia.
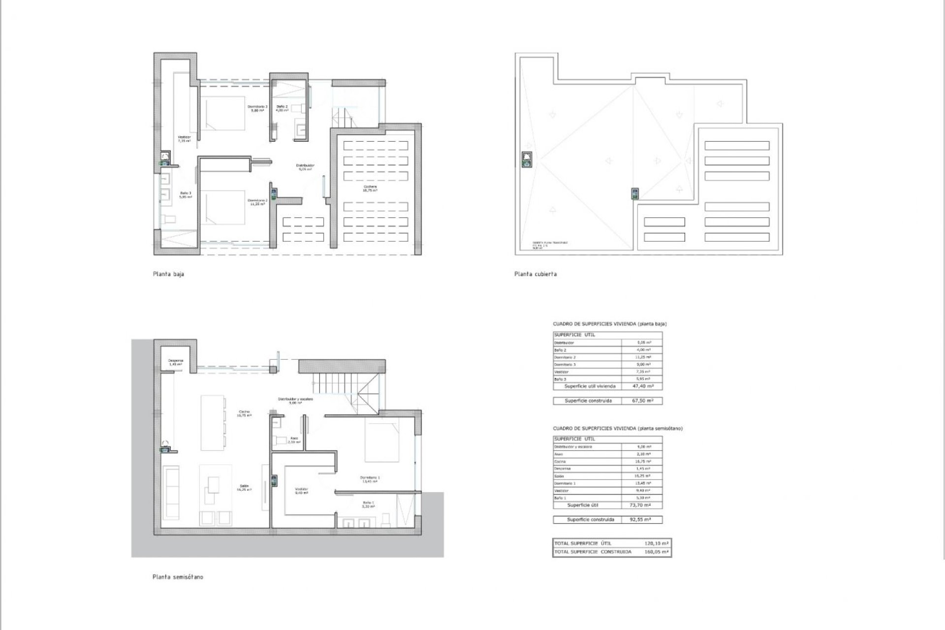
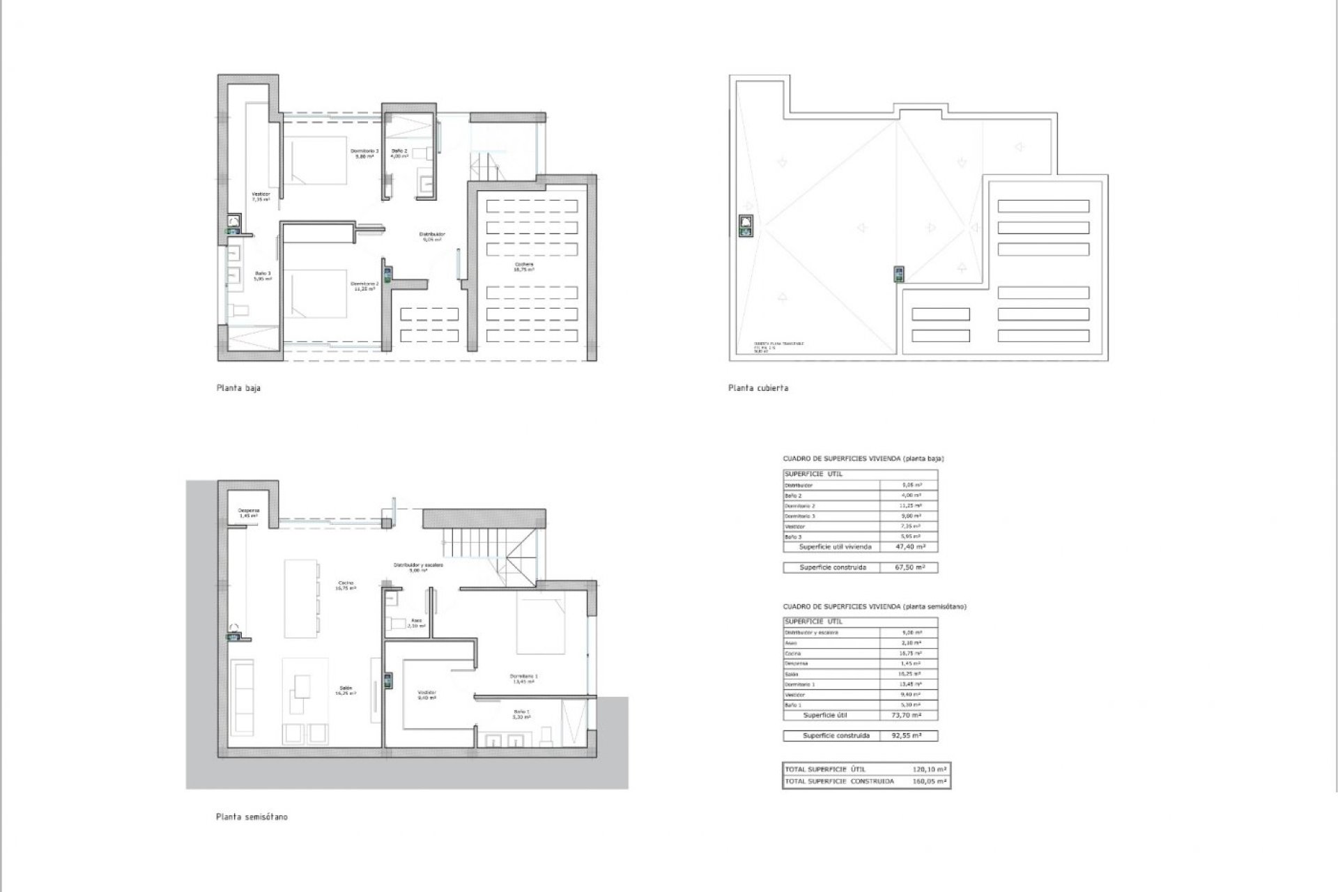
Villa independiente construido en 2 plantas y dispone de 3 dormitorios, 2 baños, 2 vestidores, cocina abierta con el salón, garaje, jardín privado con piscina.
El pueblo de Fortuna está a menos de 3km para las compras del día a día y la ciudad de Murcia está a 25km donde hay una amplia oferta gastronómica y de ocio.
El clima de la Costa Cálida, a menudo considerado el mejor de Europa, hace posible un estilo de vida muy sociable y saludable, al aire libre, marcado por fantásticas instalaciones deportivas y de ocio, con ciudades turísticas excitantes y cosmopolitas, que destacan por la prestación de servicios de primera clase, algunos de ellos exclusivos, considerados de verdadero lujo.
La Costa Cálida de Murcia cuenta con más de 300 días de sol al año.
Además de los campos de golf y los puertos deportivos de los que se puede disfrutar a lo largo de la costa, la zona también ofrece la posibilidad de esquiar en la cercana Sierra Nevada, un paraíso para los amantes de los deportes de invierno, con bellos paisajes naturales.
La posibilidad de disfrutar de todo tipo de oferta cultural y de ocio de capitales cercanas como Murcia y Cartagena.
Un paraíso con excelentes conexiones con toda Europa. Aeropuertos de Alicante-Elche y Murcias Corvera situados a una hora.