VILLAS DE OBRA NUEVA EN LOS ALCAZARES
Nueva promoción de 12 exclusivas villas independientes, cada una con piscina privada y solarium en la azotea, situadas a sólo 150 m de la hermosa playa de Los Narejos y a sólo 2 minutos a pie de la animada zona de Río Nalón, con su gran variedad de bares y restaurantes.
Viviendas exclusivas, construidas al más alto nivel en una de las mejores ubicaciones del Mar Menor.
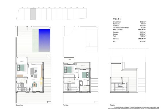
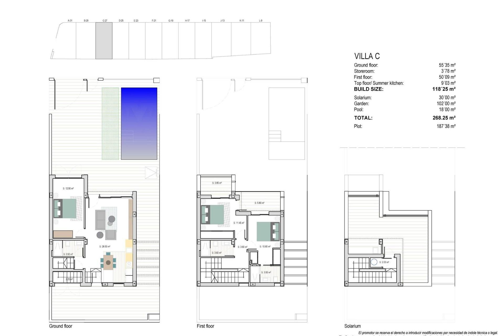
Todas las villas tienen más de 120m2 de espacio habitable más jardines privados de más de 100m2, con aparcamiento fuera de la carretera disponible en la parcela y una piscina privada de 6m x 3m con plataforma para tomar el sol incluida.
Todos los electrodomésticos incluidos: nevera-congelador, horno, microondas, vitrocerámica, campana extractora, lavavajillas, lavadora y mini-nevera en la cocina de verano.
Preinstalación de aire acondicionado por conductos en toda la vivienda.
Iluminación interior y exterior, menos luces ornamentales.
Persianas motorizadas.
La planta baja consta de un luminoso salón-comedor con cocina americana, un cuarto de baño y una habitación adicional en la planta baja de 13m2 que se podría utilizar como un tercer dormitorio, un comedor independiente o como un garaje; esta habitación tendrá puertas panorámicas de cristal que se abren hacia el exterior y que permitirán aparcar un coche en el interior si es necesario (*aunque este espacio interior se puede utilizar para lo que los propietarios necesiten y se preparará como un dormitorio, se pondrá como un garaje en las escrituras). También hay un trastero exterior y la bomba de la piscina en el patio trasero. En la primera planta se encuentra el dormitorio principal con baño en suite, dos armarios empotrados y acceso directo a un balcón, además de otro dormitorio doble con armarios empotrados y acceso a balcones. Un tercer cuarto de baño también se encuentra en la primera planta.
Las escaleras que suben desde el primer piso conducen a un solarium privado en la azotea con cocina de verano con fregadero, encimera y armario que contiene una mini-nevera. Fantásticas vistas desde el solarium, gracias a su ubicación junto al mar.
Aislamiento térmico de alta eficiencia energética, además de un alto nivel de insonorización.
Mamparas de ducha con dos opciones disponibles.
Tomas de TV y teléfono en salón, dormitorios y solarium.
Puertas interiores, carpintería y armarios empotrados en color blanco.
Doble acristalamiento con óptima protección solar.
Sistema de agua caliente mediante caldera eléctrica regulable y placas solares fotovoltaicas de 1,5kw.
Preinstalación para cargador de coche eléctrico.
Los Alcázares es un popular pueblo costero donde se pueden encontrar tiendas, bares, restaurantes, supermercados, farmacias, centro de salud, parada de taxis y paradas de autobús.
Magníficas comunicaciones, con la autopista AP7 muy cerca.
El aeropuerto internacional de Murcia está a menos de media hora en coche (40 km) y al de Alicante se llega en menos de una hora (93 km).
El prestigioso Roda Golf & Beach Resort, con su campo de 18 hoyos diseñado por Dave Thomas, está a sólo 2,5 km.