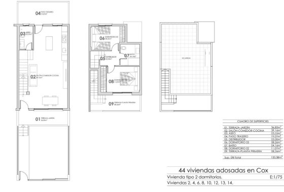
Duplex. Nueva construcción Cox. Alicante

REF: NBR-39477
223.000€
WhatsApp Chatea con nosotros