VILLAS PAREADAS DE OBRA NUEVA EN ROLDAN
Complejo de lujo de nueva construcción de villas pareadas de una o dos plantas en Roldán.
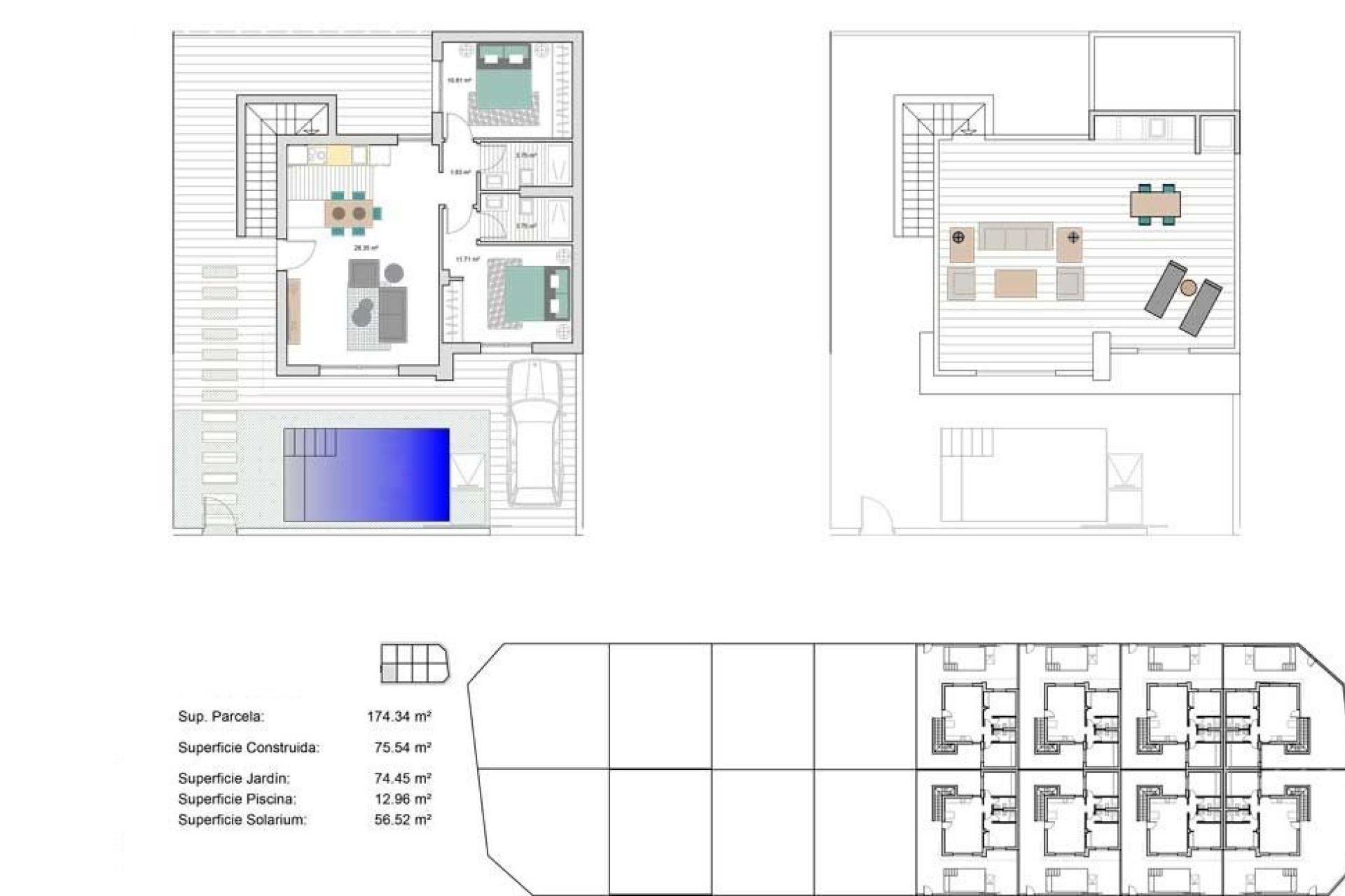
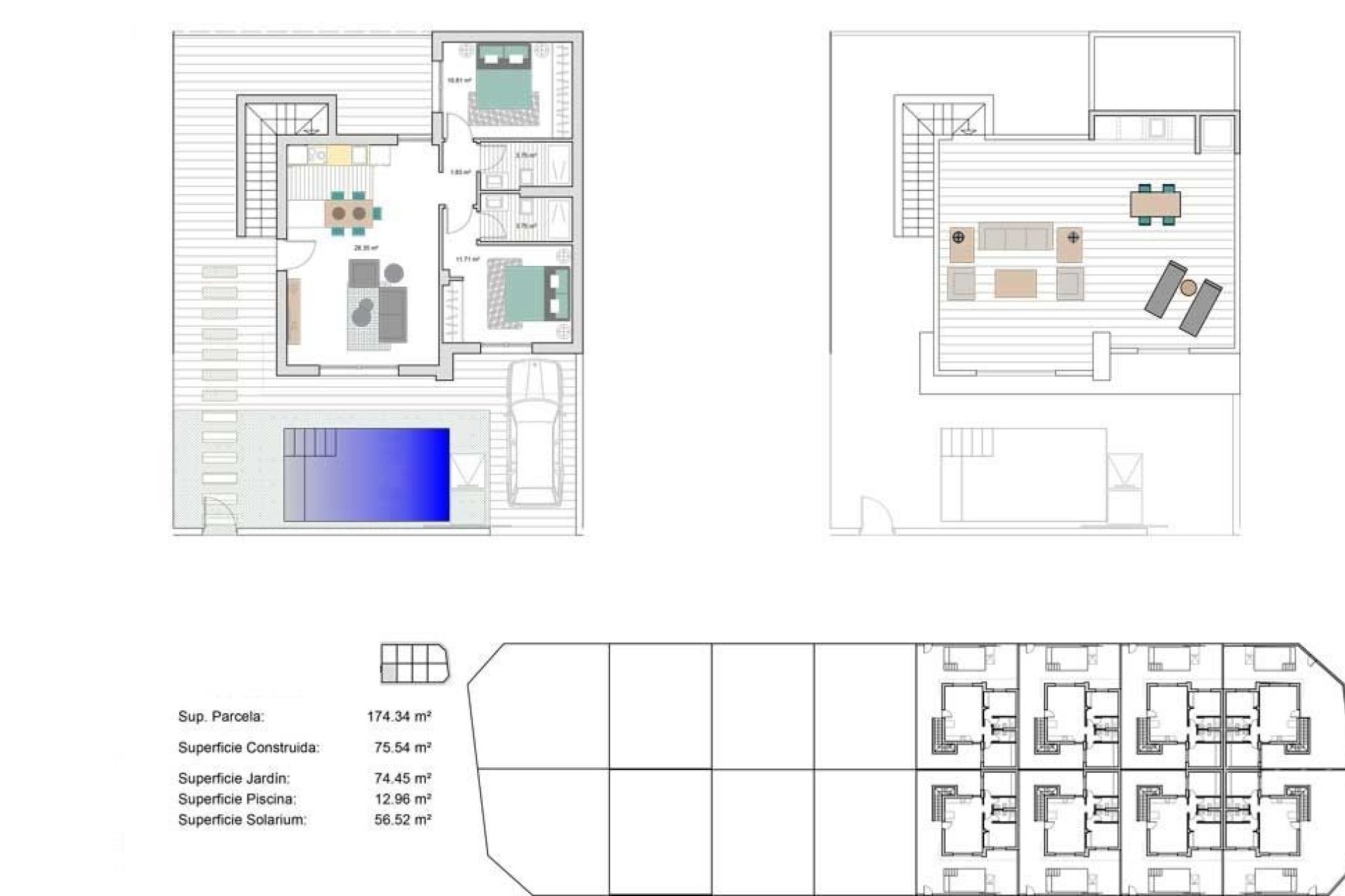
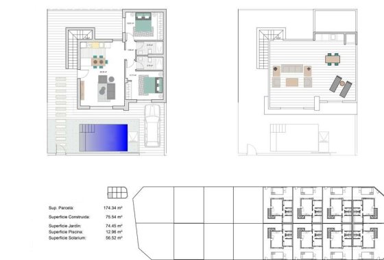
Tiene la opción de villas de 2 dormitorios, 2 baños construidas en una planta con solarium o de 3 dormitorios, 3 baños construidas en dos plantas con gran terraza.
En la planta superior, en la terraza o solarium tendrá una cocina de verano que le permitirá disfrutar de todas las horas de sol, todos los días del año.
Todas las villas disponen de jardín privado con piscina y plaza de aparcamiento.
Diseñadas con un estilo contemporáneo y un concepto abierto, compuesto por una cocina totalmente equipada y un salón-comedor.
La promoción se encuentra en Roldán (Murcia), dentro de un complejo cerrado y con control de seguridad. Está cerca de la playa, rodeada de servicios, parques, instalaciones deportivas y varios campos de golf.
La propiedad cumplirá con los más altos estándares y estará equipada con:
Piscina privada con preinstalación de sistema de calefacción y con ducha solar.
Cocina completamente amueblada y equipada con horno, microondas, frigorífico, lavavajillas integrado y campana extractora. Además, isla central de madera.
Iluminación: LED en el interior de la vivienda así como en las zonas exteriores.
Armarios forrados con cajones.
Cuartos de baño totalmente equipados con inodoro suspendido, mamparas de ducha, mueble de tocador, espejo con luz y ducha de lluvia.
Cocina de verano en solarium.
Preinstalación de aire acondicionado por conductos.
Plaza de aparcamiento en la parcela.
Roldán es un pueblo tradicional con todos los servicios locales que necesitará, incluyendo supermercados, restaurantes, bares, clínica de salud, farmacia, estación de policía, gasolinera, mecánicos, dentistas, médicos y más.
Los centros de golf cercanos de La Torre y Terrazas son fácilmente accesibles, el aeropuerto de Corvera está a 15 minutos y las playas del Mar Menor a sólo 20 minutos en coche.